K pronájmu

Krasspol a.s. – Nejlevnější pronájmy v regionu

Aktuálně k pronájmu

Oáza park

  • Nabídka pronájmu bytových jednotek v nově zbudované lokalitě Oáza v Podlesí-Křivé, umístění zde: 49.4561519N, 17.9860114E .
  • Ideální pro jednotlivce nebo páry v předdůchodovém nebo důchodovém věku.
  • Velmi klidné prostředí v blízkosti lesa.
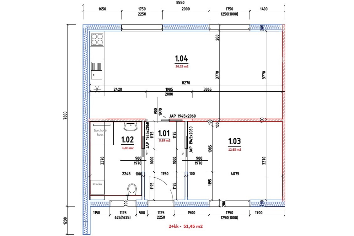
  • K dispozici byty 2+kk (52 m2), koncipované jako dvojdomky nebo trojdomky.
  • Ke každému domku náleží parkovací stání, krytá veranda, krytá terasa, malá zahrádka.
  • Součástí služeb je sekání trávníku a sezónní venkovní úklid.
  • Vybavená koupelna a kuchyňská linka.
  • Napojeno na veškeré inženýrské sítě včetně internetu. 
  • Byty i jejich okolí koncipovány takřka bezbariérově .
  • Možnost nastěhování červen 2026.
 
  • Více info emailem nebo telefonicky